Description
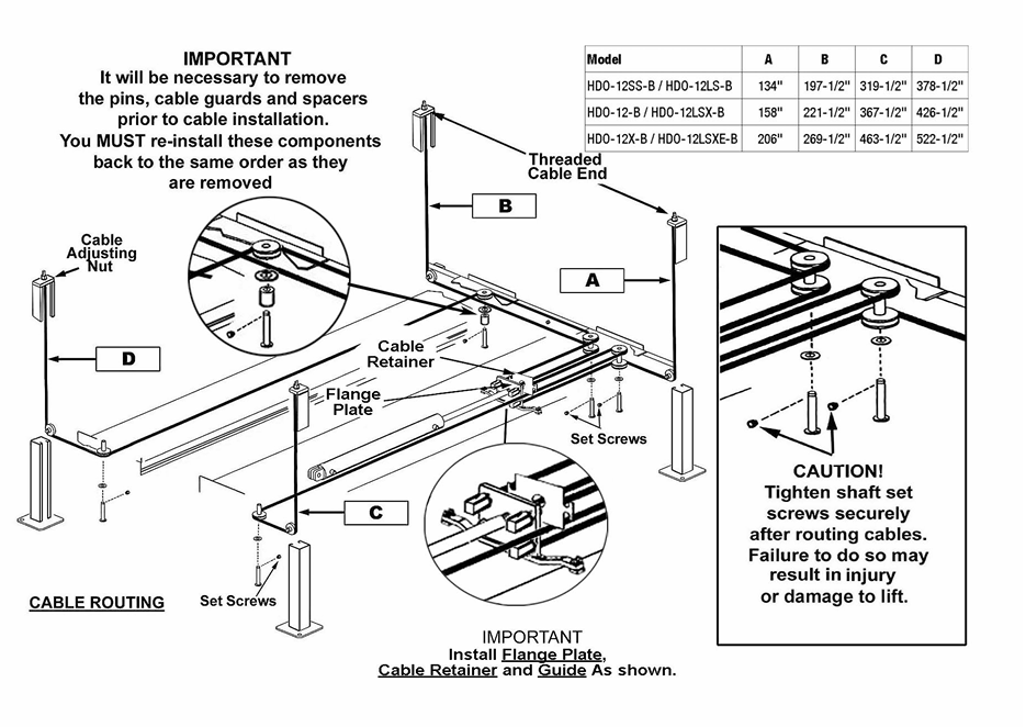
BendPak HDO-12LSX-B Four-Post LIFTING Cables “C” and “D”
THESE LIFTING CABLES HAVE ONE THREADED END AND ONE “BUTTON” END ON THEM MAKE SURE YOUR LIFT NEEDS THE BUTTON AND STUD STYLE CABLE.
CABLES ARE 1/2 INCH WIRE ROPE WITH ONE 7/8 THREADED END
-
5595675 Cable “C” measures 367.5 inches from tip to tip
-
5595676 Cable “D” measures 426.5 inches from tip to tip
-
55956__ Cable “A” measures 158 inches from tip to tip
-
55956__ Cable “B” measures 221.5 inches from tip to tip
NOTE! IT IS HIGHLY ADVISABLE TO MEASURE YOUR EXISTING CABLE AND VERIFY IF THE LENGTH SHOWN ABOVE MATCHES THE CABLE YOU NEED FOR YOUR HDO-12LSX-B.









Reviews
There are no reviews yet.